Arquitectura/Architecture
Astoria - Intercontinental
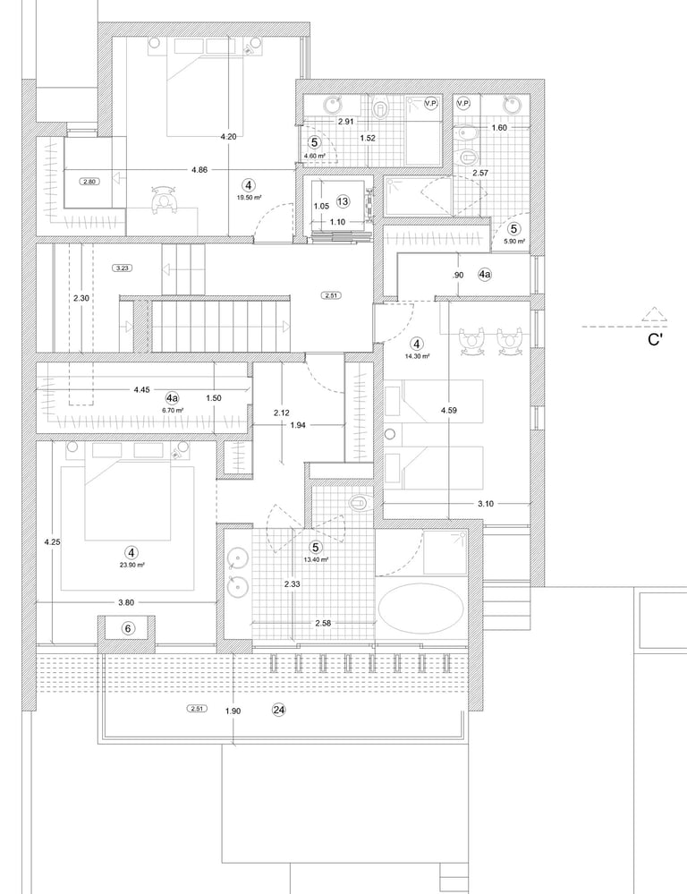
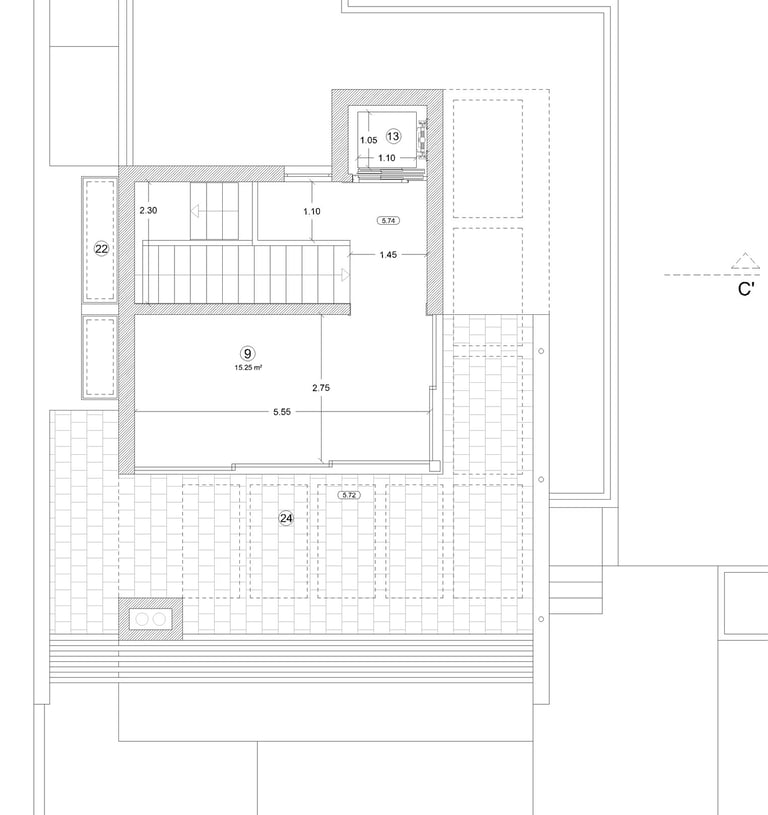
Casa da Boavista - projecto
Casa da Cerca
Flow - restaurant & bar
Mistu - restaurant & bar
Restaurante Achas na Fogueira
Stox
M.A. Central Flats - Praça Mouzinho de Albuquerque (em execução)
Contacto
Arquitectura/Architecture
Astoria - Intercontinental
Casa da Boavista - projecto
Casa da Cerca
Flow - restaurant & bar
Mistu - restaurant & bar
Restaurante Achas na Fogueira
Stox
M.A. Central Flats - Praça Mouzinho de Albuquerque (em execução)
Contacto
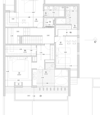
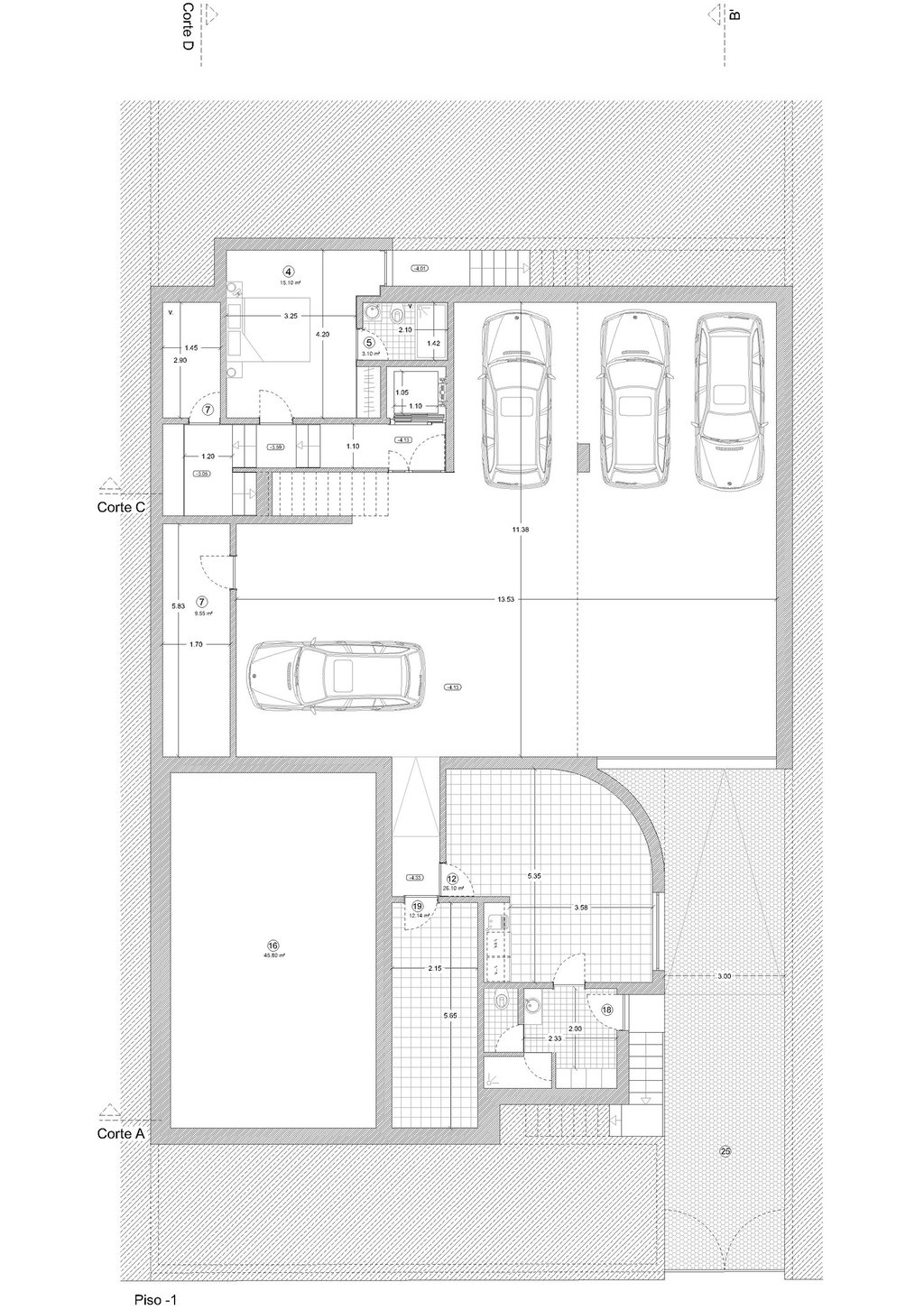
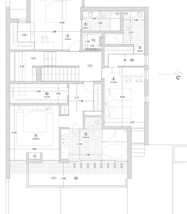
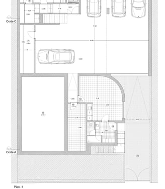
Casa na Boavista
Projecto para moradia na Avenida da Boavista no Porto